24EJF-P型二位四通換向閥
| |||||||||||||||
二、技術參數
使用介質為錐入度不低于220(25℃,150g)1/10mm的潤滑脂(NLGI0#~3#)或粘度等級大于N68的潤滑油,工作環境溫度為-20℃~80℃。 | |||||||||||||||
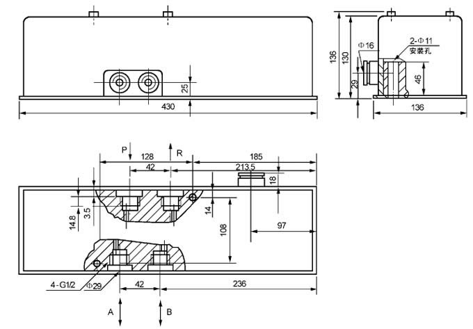
| 三、外形尺寸 | |||||||||||||||
![]() | |||||||||||||||
| 四、工作原理 該閥主要由直流電機、限位開關、換向閥體,整流變壓器裝置等元件安裝于同一底板上并置于防護罩殼內組成。 系統中的電控箱發出換向信號(系統末端壓差開關發出)使直流電機作旋轉運動,并通過偏心輪帶動閥芯作直線往復運動。當閥芯從原位到達所需要的換向位置時,閥芯端部的擋板觸動限位開關動作,發出電信號至電控箱,責令直流電機停止旋轉,完成了換向過程。 | |||||||||||||||
![]() | |||||||||||||||
| 五、使用說明 1、該閥應安裝在系統被控主、支管路的前端,且位于通風、 干燥便于檢查及周圍無運動機構干涉的部位。 2、當作二位二通使用時,須把出油口“B”和回油口“R”封堵。 3、當作二位三通使用時,須把出油口“B”封堵。 4、電控接線按上圖原理連接。 六、常見故障及排除方法 1、換向閥不換向。 可能無換向信號輸入電機,線腳焊接脫落;電機軸與偏心輪松動未緊固;閥腔內進入雜質滑芯卡死等原因,查明后排除即可。 2、滑芯二端漏油。 主要是二端密封圈損壞引起,可能是密封圈庫存久或長時間使用已老化,更換密封圈即可。 | |||||||||||||||
- 上一條 YZF-J4型壓力操縱閥
- 下一條 EM型電動換向閥



