CDQ型電動潤滑泵及裝置
|
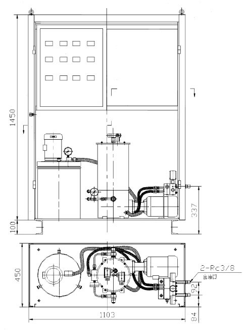
一、概 述 CDQ型電動潤滑泵裝置由DB型單線潤滑泵、DJB-50型電動加油泵、ZYCDQ-DKX型電氣控制柜、DR4-5型液壓自動換向閥及防護柜組成,適用于雙線潤滑系統,也可取消DR4-5型液壓自動換向閥則可適用于單線潤滑系統。各組成部件的技術參數和外形尺寸詳見本樣本。 二、技術參數 1、系統公稱流量:0~25、0~45、0~50、0~90ml/min 2、系統公稱壓力:20MPa 3、 加油泵公稱流量:50L/h 4、加油泵公稱壓力:1.5MPa 5、單線泵電機功率:0.37kW(流量為0~25或0~45ml/min)或0.55kW(流量為0~50或0~90mL/min) 6、加油泵電機功率:0.18kW 7、單線泵貯油桶容積:8L 8、加油泵貯油桶容積:25L 三、外形尺寸 | |
![]() |
- 上一條 DDRB-N型多點潤滑泵
- 下一條 DRB-L系列電動潤滑泵

