DEA-2L型電氣控制箱
| 一、概述 | ||||||||||||||||||||||||||||||
|
||||||||||||||||||||||||||||||
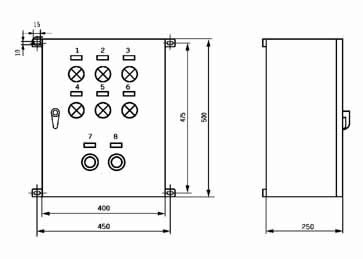
| 二、外形尺寸 | ||||||||||||||||||||||||||||||
|
||||||||||||||||||||||||||||||
| 三、標牌符號及文字 | ||||||||||||||||||||||||||||||
|
||||||||||||||||||||||||||||||
| 四、DEA-2L型電氣控制箱接線端子圖 | ||||||||||||||||||||||||||||||
|
||||||||||||||||||||||||||||||
|
五、使用說明 1、適用主電源3N 50HZ AC 380V。 2、適用環境溫度-10℃~40℃,濕度90%。 3、周圍環境無導電的介質(氣體、液體)。 4、垂直安裝,其傾斜度不大于5°。 |
- 上一條 GDK03型電氣控制箱
- 下一條 DEA-2E型電氣控制箱
