YWYQZ-B型油氣供應站
| 一、結構特點及應用范圍 | ||||||||||
| YWYQZ-*/*-B型油供應站,是集潤滑油液儲存、增壓過濾蓄能供送和PLC電氣控制于一體的機電儀一體產品,適用于單線-多區式油氣潤滑系統中。 | ||||||||||
| 二、性能參數 | ||||||||||
|
||||||||||
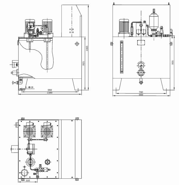
| 三、外形圖 | ||||||||||
|
||||||||||
| 四、型號說明 | ||||||||||
|
||||||||||
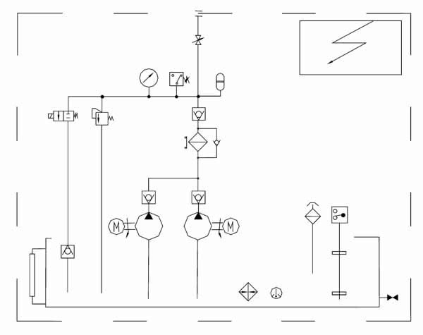
| 五、原理圖 | ||||||||||
|
||||||||||
| 六、功能說明 | ||||||||||
|
該站主要由油箱(帶電加熱器、液位計、電接點溫度計、空氣濾清器、液位控制器)、兩臺高壓油泵裝置(一備一用)、溢流閥、二位二通電磁閥、蓄能器、壓力控制器、過濾器、單向閥、壓力表等和PLC電氣控制箱組成。在電動機的牽引下油泵工作,從油箱內吸入潤滑油加壓排出,途徑單向閥、過濾器、蓄能器后向系統主管線供送。 正常工作時,一臺高壓油泵常開工作,另一臺備用,可通過電氣轉換開關來交替使用,并可通過按鈕開關人工啟動和停止油泵,PLC電氣控制箱對油氣系統實行程序化全自動控制,還可向主控室提供系統“運行”、“停止”、“故障”等遠程信號接口。 |
||||||||||
| 七、使用要領 | ||||||||||
|
1、油供應站應安裝在灰塵少、振動小、通風干燥、環境溫度適中,且便于調整、檢查、維護和方便補油的地方。 2、油泵電機的旋向是單向的,使用時必須按電機外的旋向牌規定的旋向接線使用。 3、油箱油位低時應及時從空氣濾清器的過濾網口處加入同牌號的潤滑油,油位到達低油位時電氣連鎖油泵不能啟動,嚴禁人工在無油或低位以下時啟動油泵工作。 4、油供應站正常環境情況下工作,油箱電加熱一般不投入使用,只有在冬季北方地區氣溫偏低情況下,為適當降低油的粘度才啟動電加熱對箱內油液進行加熱。 5、油過濾器差壓信號報警時,維護人員應及時清洗或更換濾芯。 6、油泵出口處的安全調壓閥,無故不允許調節,決不允許調高至公稱壓力值以上使用。 7、PLC電氣控制箱經調試工作正常后,無故不許隨意修改或調整程序。 |
- 上一條 YTYQZ-0.28型油氣供應站
- 下一條 YDYQZ單線卸壓式油氣供應站
